Překreslení stavebních výkresů
- [27.9. 2025]Smazat/ Upravit/ Topovat














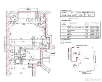
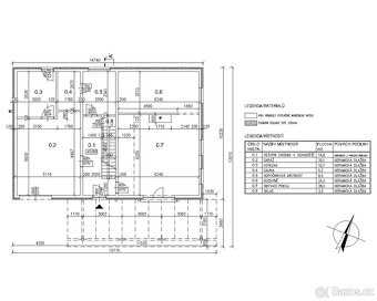
Dobrý den, nabízím překreslení (digitalizaci) stavebních výkresů z papírové podoby do digitální. Projekční práce pozemních staveb, rodinné domy, dřevostavby, garáže, stavební úpravy, odstranění stavby, pasport stavby. Dlouholeté zkušenosti. Celá ČR. www.prekresleni.cz
|
| |||||||||||||||||||||||||||||||
Kontaktovat inzerenta emailem
Kontaktovat emailem může pouze ověřený uživatel.
Ověření je zdarma.
Vaše telefonní číslo *
Kontaktovat emailem může pouze ověřený uživatel.
Ověření je zdarma.
Vaše telefonní číslo *